Stacks Image 540995
Projects and Studies
NURSING HOME PRAGUE 10
Stacks Image 531437
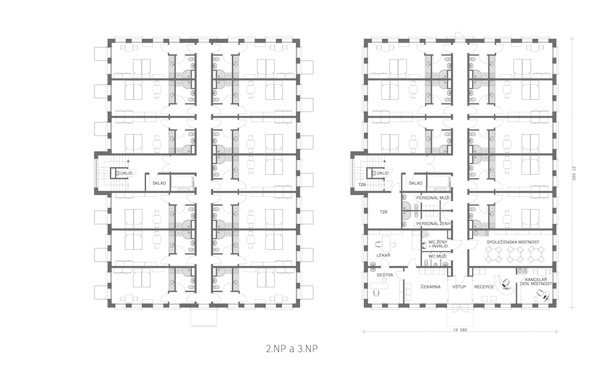
This proposal for a nursing home in Prague 10 is situated on the edge of the built-up area near a natural environment with many leisure activities. The development will not result in the felling of mature trees or restrict public access to the site. The project envisages a 3-storey building which, in addition to units for accommodation of the elderly, will also include a medical office, a lounge and a catered dining room. The intention is based on the current demographic study, which predicts a further increase in the number of seniors in the coming years and therefore the need for this type of facility.

Stacks Image 541009
Stacks Image 541011
Stacks Image 541013
Stacks Image 541016